Site Plans for Dining Out NYC

We’re DOT trained. We’ll survey your restaurant and provide the required Site Plan Form at a fixed cost.

DOT Applications  

Sidewalk Cafe   

May operate year round (during the DOT permitted hours).

Must be ADA accessible.

Application for renewal is required every 4 years.

DOT & NYC Fees (per the DOT application portal)

  • $1,050 Non-Refundable License Fee

  • $1,000 Public Hearing Fee Estimate

  • $1,500 Security Deposit

  • $6 - $31 Annual Revocable Consent Fee (per square foot) (based on locale)

Roadway Cafe   

May operate between Apr 1 to Nov 29 (during the DOT permitted hours).

Must be ADA accessible.

Application for renewal is required every 4 years.

DOT & NYC Fees (per the DOT application portal)

  • $1,050 Non-Refundable License Fee

  • $1,000 Public Hearing Fee Estimate

  • $2,500 Security Deposit

  • $5 - $25 Annual Revocable Consent Fee (per square foot) (based on locale)

Our Pricing  

Sidewalk Cafe or Roadway Cafe 

$1,400

*

Sidewalk Cafe and Roadway Cafe

$2,000

*

*This is our service fee for the completed Site Plan Form and does not apply towards any application fees, license fees, security deposits, revocable consent fees, or other costs. A completed Site Plan Form does not guarantee application approval. It is the responsibility of the restaurant to submit their application directly with the NYC DOT. Phantom Design Studio is not an Authorized Representative.

Our Process          

Restaurant Information      

     1. 

To conduct preliminary research on your restaurant, we need some basic information:

  • Restaurant Name & Address

  • Contact Name & Email

  • Which cafe setup are you interested in? Sidewalk, Roadway, or Both?

Please use the form below to submit these details and we’ll be in touch.

Eligibility Summary             

     2. 

With your restaurant information, we can cross-reference multiple city/civil maps with NYC’s open data to provide you with a complimentary Eligibility Summary based on the cafe setup you are interested in. This summary will not fully capture site conditions or guarantee eligibility but will give you an idea of your potential for outdoor dining. You should expect to receive the following:

  • Temporary Open Restaurant Status (key factor for submission deadlines)

  • Pedestrian Demand Category (required for Sidewalk Cafe setups)

  • Curb Regulations Snapshot (research for Roadway Cafe eligibility)

  • Revocable Consent Sector (this will inform the annual fees to the city)

Based on this information, you can make a more informed decision on whether to move forward with Phantom completing your Site Survey Form. You’ll receive a proposal along with the summary.

Site Survey        

     3. 

Once we receive the signed proposal, we will conduct a site visit to survey your existing sidewalk and roadway conditions. We’ll document all the necessary information to complete the DOT’s Site Survey Form and provide the required floor plan for your application.

Completed Site Plan Form           

     4. 

We will send you the completed DOT Site Plan Form(s) along with a scaled site plan and the required site photos. You’ll then be able to upload the respective form(s) and photos to your application profile.

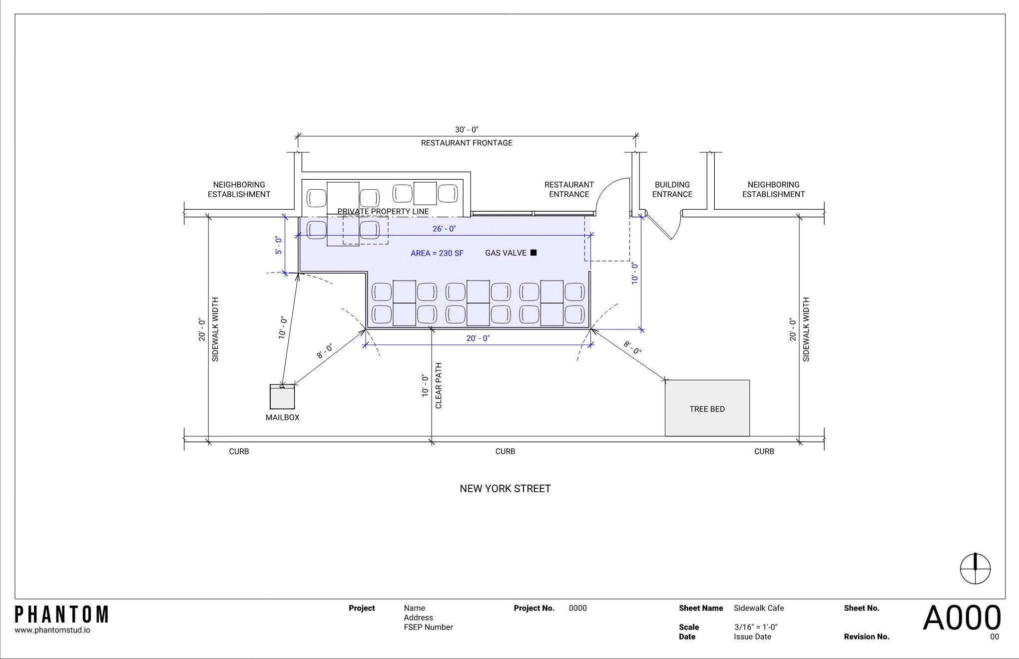
Below are some examples of completed Site Plan Forms.

Other Resources  

*Links and files provided by the DOT’s Dining Out NYC program